服务热线
15366873355
似乎是2020年年底冲刺把力气都用完了,2021年01月扬州商品房市场供应、成交都出现了明显下降,供应建筑面积环比下降72.31%,成交建筑面积环比下降10.81%。
即使在1月遇冷的情况下,有些楼盘仍然以狂卖百套的成绩给这个冬天注入一把火!
本月万科四季都会以1.27方,售出111套获得本月销售冠军,其次是华侨城·万科·侨城里成交1.05万方,售出96套,距离百套目标仅一步之遥。
中信泰富锦棠和绿地健康城分别以售出79套和67套,进入本月销售面积过万方的俱乐部。

万科四季都会:狂卖百套,售出建筑面积约1.3万方!
不得不佩服大品牌的号召力和产品力,本月的销冠荣归万科·四季都会!
项目位于扬州市平山堂西路与润蜀路交叉口,是西区新城的明星楼盘,项目开盘后一直火热,还没有下过榜,销售成绩非常亮眼,本月拿到销冠也是实至名归。

项目为2020年万科都会系作品,既是扬州首个万科“都会”系,也是翡翠系的升级版,从销售成绩来看,扬州人对于“都会”系是极为认可的。
项目占地9.7万㎡,容积率1.8,绿化率35%,由10栋高层和19栋多层组成,户型建筑面积约96-143㎡。
12月,万科对面的万达正式开业,家门口的人流量没有不蹭的道理。
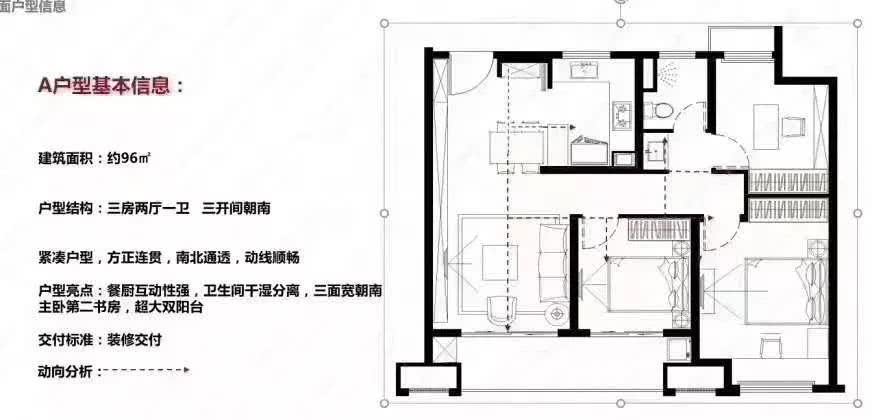
万科四季都会的户型设计,建面约96-143㎡的户型,每个都看点满满!

建筑面积约96㎡(三室两厅一卫):

建筑面积约117㎡(三室两厅两卫):

建筑面积约109㎡(三室两厅两卫):

作为扬州目前的最高建筑,位于扬州市江都区文昌东路999号的金奥中心可谓无人不知无人不晓。
而其住宅也是战绩彪炳!2021年刚到元旦,一天就卖了一个亿!
扬州金奥文昌公馆丨荣华二期首开仅仅3天时间内,不仅收获了首开首捷战果,更以1天狂卖80套,劲销1个亿的骄人成绩,问鼎扬州销量冠军,同时斩获了扬州1月面积、套数销售双冠王!

全自持商业扬州金奥中心和扬州金奥花街即将为扬州打造一个新的商业中心。
2019年金奥项目与总部在美国纽约的万豪集团进行签约。金奥万豪酒店的品牌第一次入驻扬城,打造扬州标准五星级酒店,为扬城注入新血脉。
根据最新消息,金奥灯光调试进入中间楼层,金奥广场将招商引入品牌,将直接为项目上入驻的企业和往来客商提供餐饮、休闲服务,同时带动周边的固定消费群。
建筑面积约139㎡:
四室两厅两卫,户型方正,三开间朝南,此户型功能性很强,特别是南向宽景阳台约6.1米,南北通透,保障屋内新鲜空气对流,避免滋生细菌。

建筑面积约136㎡:
三室两厅两卫,户型方正,南北通透,三开间朝南,活动区域动线设计合理,豪华主卧套间设计。

市区销售第二名:华侨城·侨城里!
市区销售第2名是华侨城·侨城里,成交套数96套,成交面积10528㎡。
作为去年的销售冠军,2021年的第一个月,华侨城的成绩依旧喜人!
侨城里项目总占地450万m²,其中住宅占地面积60.8万m²,容积率1.41,绿化率35%;洋房建筑面积113-146 ㎡,高层建筑面积95-118㎡,毛坯或装修交付。

华侨城项目以文旅为主业,将商业、休闲、居住等多种业态“串珠成链”,集IP体验、游乐设施、家庭游乐、亲子互动、文化体验、主题演艺和创意餐饮于一体,并配合园区开放式的经营方式。
扬州华侨城大型文化旅游综合项目将与扬州文化旅游产业形成完美互补,2021年将为扬州市民及周边游客提供更为自由的体验模式。